오늘 알아볼 청약 정보는 서울특별시 구로구의 '호반써밋 개봉5구역'입니다. 이 아파트는 구로구 개봉동 68-64번지 일원에 자리 잡고 있으며, 총 3개동의 건물로 구성되어 있습니다. 높이는 최대 24층에 이르며, 총 317세대로 이루어진 대단지입니다.
관련 : 청약통장을 갖고 있어야 하는 이유
이 중에서 특히 주목해야 할 정보는, 이번 재건축 사업을 통해 총 190세대가 일반분양 대상임을 알 수 있습니다. 이는 전체 세대 중 약 절반 가량이 새로운 주민들을 위한 분양이 이루어질 것임을 의미합니다. 이러한 정보는 청약 희망자들에게 중요한 판단 기준이 될 수 있으므로, 청약을 고려하시는 분들은 이 점 참고하시기 바랍니다.
청약일정
호반써밋 개봉5구역' 청약 관련 주요 일정을 요약하면 다음과 같습니다.
♥ 모집공고: 8월 24일
♥ 청약접수: 9월 5일
♥ 당첨자 발표: 9월 13일
♥ 계약일: 9월 25일부터 27일까지
♥ 입주예정일: 2024년 12월
이러한 일정을 바탕으로 청약을 원하시는 분들은 청약 접수일인 9월 5일을 놓치지 않도록 주의하셔야 합니다.
또한, 당첨된 경우에는 9월 25일부터 27일 사이에 계약을 진행하셔야 하며, 최종적으로는 2024년 12월에 입주를 예정하고 있음을 알 수 있습니다.
공급세대 및 분양가
아래는 '호반써밋 개봉5구역'의 일반분양 세대별 정보를 표로 정리한 내용입니다.
이 표를 통해 각 면적별 세대 수와 분양가를 한눈에 확인하실 수 있습니다.
| 전용면적 | 세대 수 | 분양가 |
| 49㎡ | 15세대 | 5.99억 |
| 59A㎡ | 41세대 | 7.66억 |
| 59B㎡ | 32세대 | 7.71억 |
| 84A㎡ | 41세대 | 9.98억 |
| 84B㎡ | 42세대 | 9.93억 |
| 84C㎡ | 16세대 | 9.98억 |
| 84P㎡ | 2세대 | 13.90억 |
| 114P㎡ | 1세대 | 18.75억 |
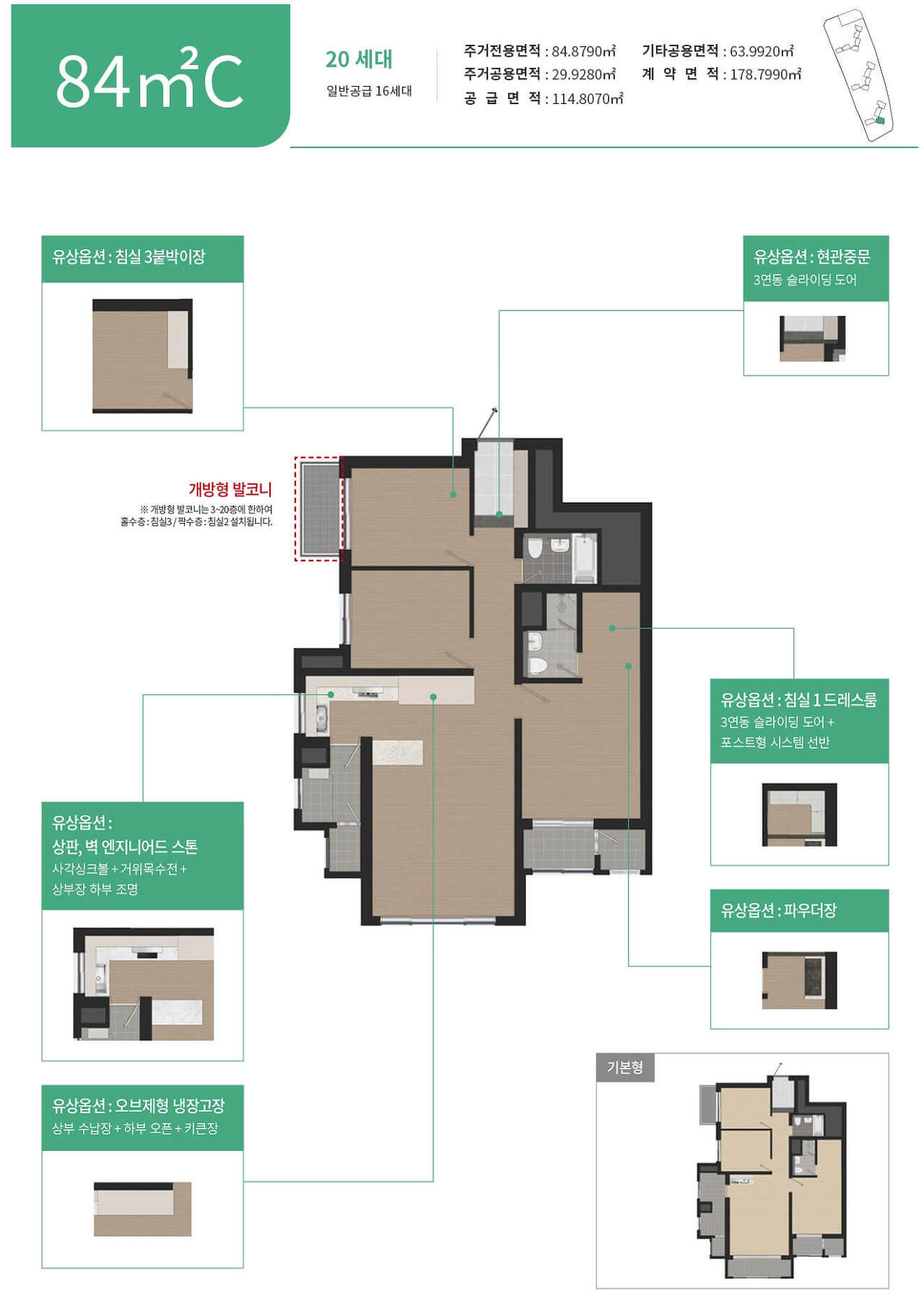
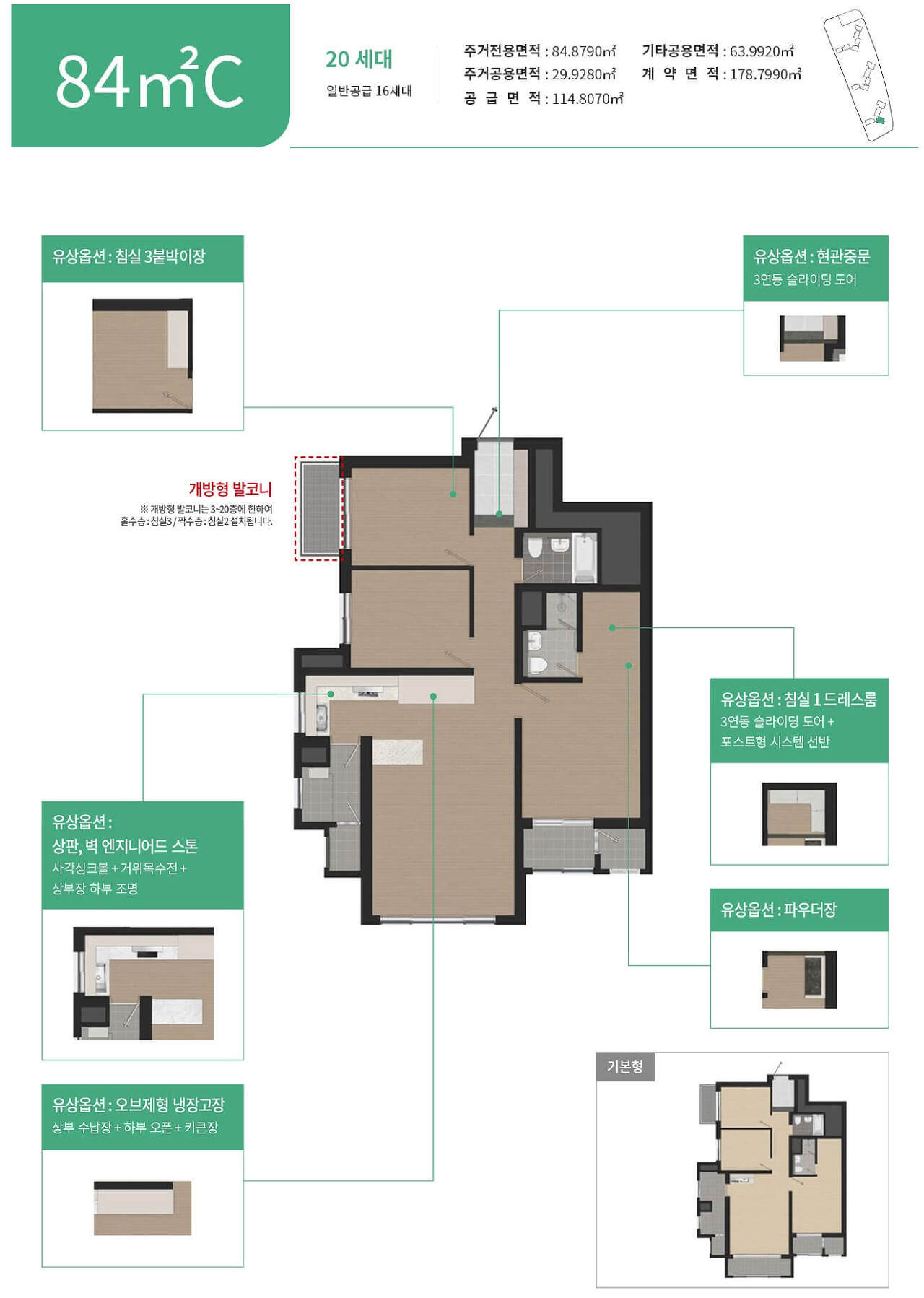
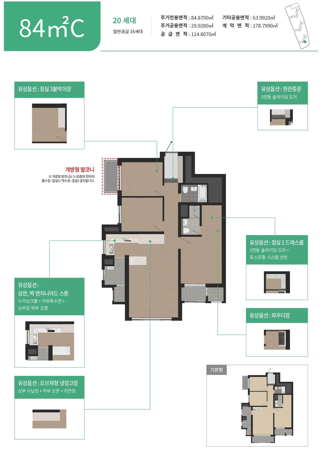
아파트 조감도 및 평면도
청약분석
바로 길 건너편에 위치한 개봉푸르지오와 비교해보면 좋을 것 같습니다. 물론 차이는 있습니다만 가장 비슷한 비교가 가능할 것입니다.
| 항목 | 호반써밋 개봉5구역 | 개봉푸르지오 |
| 위치 | 서울 구로구 개봉동 | 서울 구로구 개봉동 |
| 전용면적(84㎡) 분양/호가 | 9.98억 | 8.5억(4층/25층 호가) |
| 준공일 | 2024년 12월 예정 | 2014년 7월 |
| 세대수 | 317세대 | 978세대 |
호반써밋 개봉5구역의 최초 예상분양가는 11.7억이었으나, 현재 분양가인 9.98억으로 예상보다 상당히 낮게 책정되었습니다. 이는 일대의 시세와 최근 분양된 단지들의 가격을 감안할 때 상대적으로 합리적인 가격으로 보입니다.
관련 : 잔금대출 어떻게 할까요?
근접 지역에 위치한 광명센트럴아이파크의 84타입 가격이 12.7억인 것을 고려하면, 서울 지역의 호반써밋 개봉5구역의 9.98억은 상당히 매력적인 가격으로 보입니다. 또한, 다른 서울 단지인 서울대밴처타운역 푸르지오의 84타입은 10.29억으로 분양되었는데, 이와 비교했을 때도 호반써밋 개봉5구역의 가격은 경쟁력이 있다고 판단됩니다.
그러나 호반써밋 개봉5구역은 후분양 단지로서 전매제한이 존재한다는 점을 주의해야 합니다. 더불어, 분양가와 준공시기는 예상보다 더 좋게 나온 반면, 주변 시세와 비교하여 비싸게 책정될 가능성도 고려해야 합니다. 특히 일부 동에서는 로얄층이 포함되어 있어 좋은 층을 선택할 기회가 있다는 점이 장점으로 작용할 것으로 보입니다.
총평으로, 호반써밋 개봉5구역은 분양가와 기타 조건을 종합적으로 고려했을 때, 투자나 거주 목적으로 고려할 만한 단지로 평가됩니다.
'머니정보' 카테고리의 다른 글
| 지상 최대의 선호 아파트 경희궁 자이 분석! (0) | 2023.08.29 |
|---|---|
| 서울 육아휴직장려금 최종정리 및 신청방법까지 (0) | 2023.08.28 |
| 서울역 센트럴 자이 입지 분석 (0) | 2023.08.25 |
| 고덕 그라시움 투자가치 분석(입지, 시세 등) (0) | 2023.08.24 |
| 좀 더 싸게 비행기표 사는 방법, 땡처리 항공권 구매 (0) | 2023.08.24 |












